Our Lady of Perpetual Help Project Images

Our Lady of Perpetual Help, Lake View, New York

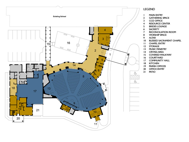
The Catholic parish of Our Lady of Perpetual Help is located in Lake View, New York. The project included a new church, community center and kitchen support areas, relocation of the parish offices and a beautiful courtyard connecting the new church to the existing catholic school.

We collaborated with the project architect on the interiors portion of this project starting with the review of the preliminary floor plans and design concepts. Together we developed final details for window placement along the gathering areas to incorporate seating and widen the views to the courtyard. We selected and specified all interior finish materials, millwork and furniture for all new building areas including renovations to the existing first floor convent for use by the parish offices. We worked with manufacturers and artists to design the stained glass windows, custom light fixtures for the worship space and the alter furnishings.

Floor Plans

Floor Plan