Inside Designs Project Examples

Corning Inc., Corning, New York

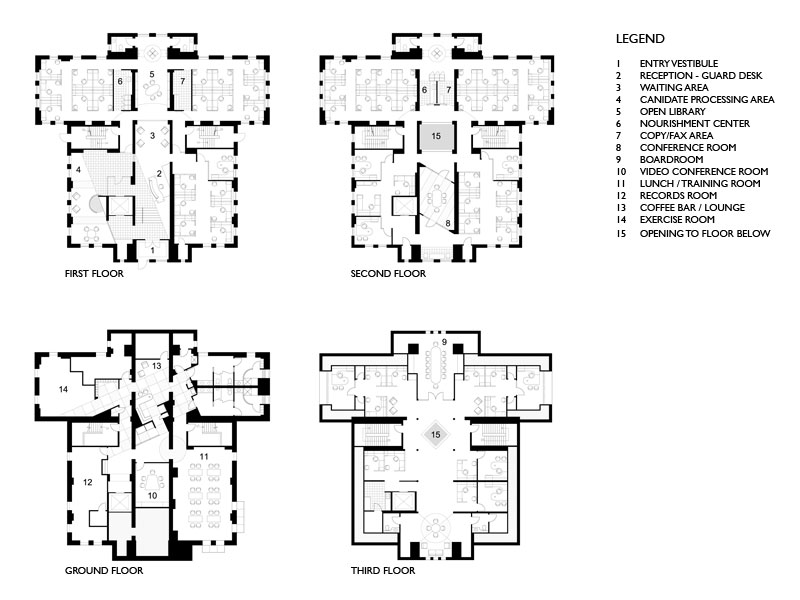
Abandoned in 1986, the Corning, NY schoolhouse remained vacant until purchased by The Krog Corp. of Orchard Park to redevelop the building for the Professional Recruitment Operations Group of Corning Inc.

The initial design program began with studies to locate an elevator, two new stair towers, toilet room facilities, and ADA accessibility to meet building codes. The existing floor plans, depicting four classrooms per floor created natural neighborhoods for placement of departments while allowing creative locations for open collaboration amongst the groups. A new two-story atrium was created to connect the attic to the first floor waiting area. The basement provided the additional square footage to house the video conference room, fitness center, pantry and multipurpose break room.

Floor Plans

Floor Plans