Five Star Urgent Care Project Images

Five Star Urgent Care, Buffalo, NY

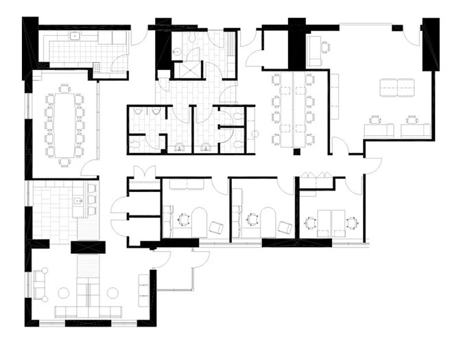
First project of 6 total locations located in the Big Flats Consumer Square retail complex. We worked with founders on the overall patient process and generated final floor plan to meet these needs including patient wayfinding, physician and staff support areas. All medical equipment requirements were reviewed for size and clearance for accurate room sizes.

We worked with the building developer on a design build basis as the project was fast tracked to meet a very tight deadline. We provided the details for interior woodwork and millwork designs, specification of interior finishes and installation details.

Floor Plans

Five Star Urgent Care Plan