MOOG Project Images

MOOG Inc., East Aurora, New York

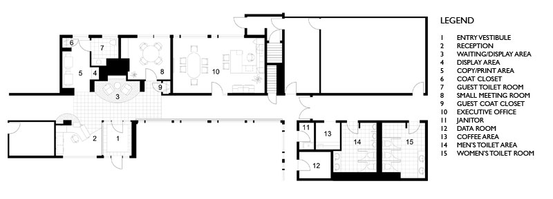
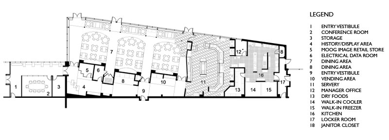
Various projects have been completed for MOOG Inc. located on the campus in Elma, NY. The projects showcased include the following:

Medical Devices Group – This project included a separate entry, reception area, small conference room, executive office and support staff.

Aircraft Café – This project included a new building addition to the Aircraft building to accommodate a new cafeteria which includes a full commercial kitchen, dining areas that can be separated into three dedicated meeting rooms.

Plant 20 Renovations – ßVarious projects in the existing building including a large formal conference room and the expansion of this building with a new two-story addition.

Floor Plans

Floor Plan
Floor Plan