Inside Designs Project Examples

Eisaman Contract Associates, Buffalo, New York

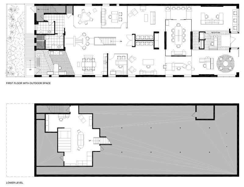
Eisaman Contract Associates represents top manufacturers of quality office furniture to enhance interior environments. Inside Designs was retained to design a showroom space and layout that could incorporate various manufacturers, products and style of seating samples that worked together cohesively.

The original building layout was redesigned from a shared center entrance for two existing tenants to a single tenant occupancy. All new interior building materials were carefully selected, including toilet room finishes and new lighting throughout. The property included a quaint courtyard space at the rear of the building that we opened up by installing a large storefront with an access door, exposing the outdoor space and filling the showroom with natural light. This allowed the owner an opportunity to display outdoor furnishings, as well as have a unique event space. The lower level was designed as an extension of the upper floor. It now provides a warm and inviting gathering area to review materials and finish selections.

Floor Plans

Floor Plans