API Heat Transfer Project Images

API Heat Transfer, Cheetowaga, New York

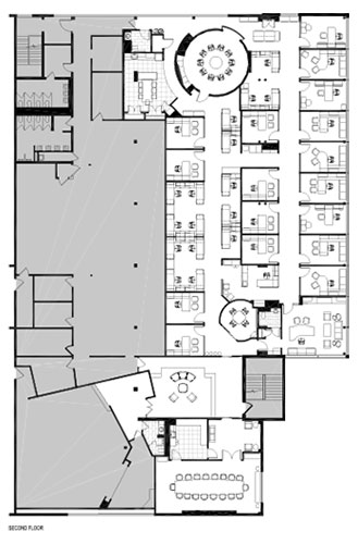
Inside Designs was retained to provide interior design services for the new two story addition to API’s Corporate Headquarters. We worked in collaboration with the Project Architect and Contractor. The goal of this project was to reassemble the Executive Team and Support Staff on the second floor. The addition created a vacant area for a well appointed Boardroom, Breakout Area and Support Servery.  Updated Corporate Branding was utilized throughout including logos, colors, and corporate images.

The first floor of the addition was used for a new Training Room with updated AV, Conference Room, private office and open plan area for 10 staff members.

Currently, we are in the early space planning process to renovate various areas on the first floor. This includes the Main Entry and Reception Area, Sales and Engineering Departments, Employee Break Room and Entry.  

Floor Plans

API Heat Transfer – Second Floor Plan
API Heat Transfer – First Floor Plan